|
Вход или Регистрация
|
была 5 часов назад
|
|||||||||||||||||||||||||||||||||||||||||||||||||||||||||||||||||||||||||||||||||||||||||||||||||||||||||||||||||||||||||||||||||||||||||||||||||||||||||||||||||||||||||||||||||||||||||||||||||||||||||||||
|
14
Посты
|
Подписчики
|
Подписки
|
Дизайнер интерьера и ландшафтный архитектор!
Помогаю людям создавать уют, объединяя красоту и функциональность!
Помогаю людям создавать уют, объединяя красоту и функциональность!
|
Я здесь
|
Все люди |
Елена Сысоева — записи
![]() |
|
![]() |
![]() |
![]() |
![]() |
![]() |
![]() |
![]() |
![]() |
![]() |
Недавно мне посчастливилось поработать с одной из лучших кофеен города и помочь им открыть !вторую! точку. Кофейня "DUSHA". Задача стояла интересная: создать пространство "минималистично, но не скучно" — чтобы интерьер подчеркивал характер бренда, был лёгким для восприятия, но при этом оставался живым и запоминающимся.
Мы сделали акцент на чистых линиях, функциональности и деталях, которые добавляют уюта и динамики. В результате получилось пространство, где минимализм не равен холод... читать полностью
Мы сделали акцент на чистых линиях, функциональности и деталях, которые добавляют уюта и динамики. В результате получилось пространство, где минимализм не равен холод... читать полностью
|
![]() |
|
![]() |
![]() |
|||||
|
||||||
|
||||||
Проект 2-комнатной квартиры в Белграде для пары с собакой породы сиба-ину
🤍🤍🤍
Заказчики данного проекта очень любят своего питомца, но также любят и свой комфорт. Для удобного выгула пёселя в прихожей были размещены лапомойка из керамогранита и полотенцесушитель)
🤍🤍🤍
Заказчики данного проекта очень любят своего питомца, но также любят и свой комфорт. Для удобного выгула пёселя в прихожей были размещены лапомойка из керамогранита и полотенцесушитель)
|
|
![]() |
|
![]() |
![]() |
![]() |
![]() |
![]() |
![]() |
![]() |
![]() |
Проект квартиры в уютном оранжевом цвете в сочетании со светлым деревом.
🧡🧡🧡
В данном проекте мы использовали встроенные системы хранения, а прихожую отделили декоративной контрастной перегородкой черного цвета. Она предотвращает распространение запахов и звуков с кухни.
На кухне, вместо стандартной ТВ-зоны мы предусмотрели встроенный экран проектора, который не занимает много места и идеально подходит для семейных вечерних кинопросмотров!
🧡🧡🧡
В данном проекте мы использовали встроенные системы хранения, а прихожую отделили декоративной контрастной перегородкой черного цвета. Она предотвращает распространение запахов и звуков с кухни.
На кухне, вместо стандартной ТВ-зоны мы предусмотрели встроенный экран проектора, который не занимает много места и идеально подходит для семейных вечерних кинопросмотров!
|
|
![]() |
|
![]() |
![]() |
|||||
|
||||||
|
||||||
Реализация и 3D-визуализация одной из квартир на нашей практике.
Такой уютный интерьер заказчики смогли реализовать САМОСТОЯТЕЛЬНО по нашему проекту! Все ссылки на товары мы собираем в одну таблицу и направляем заказчику для дальнейшего приобретения.
В своих проектах мы указываем используемые материалы: керамогранит/ кварцвинил, оттенок краски, декоративные панели, плинтуса, сантехнику и многое другое.
Даже после сдачи альбома мы всегда остаемся на связи... читать полностью
Такой уютный интерьер заказчики смогли реализовать САМОСТОЯТЕЛЬНО по нашему проекту! Все ссылки на товары мы собираем в одну таблицу и направляем заказчику для дальнейшего приобретения.
В своих проектах мы указываем используемые материалы: керамогранит/ кварцвинил, оттенок краски, декоративные панели, плинтуса, сантехнику и многое другое.
Даже после сдачи альбома мы всегда остаемся на связи... читать полностью
|
![]() |
|
![]() |
![]() |
![]() |
||||
|
||||||
Добрый день, друзья!
Хотим рассказать Вам, что к нам обращаются не только с большими квартирами. Например, дизайн квартиры 27,5 квадратов для холостого мужчины.
Получилась светлая, многофункциональная квартира, наполненная тёплыми оттенками! Стеллаж, в данном случае, выполняет функцию зонирования, но благодаря его проницаемости, естественный свет проникает в кухню и прихожую!
Если у Вас есть запрос на дизайн интерьера компактной квартиры, можно писать лично мне ... читать полностью
Хотим рассказать Вам, что к нам обращаются не только с большими квартирами. Например, дизайн квартиры 27,5 квадратов для холостого мужчины.
Получилась светлая, многофункциональная квартира, наполненная тёплыми оттенками! Стеллаж, в данном случае, выполняет функцию зонирования, но благодаря его проницаемости, естественный свет проникает в кухню и прихожую!
Если у Вас есть запрос на дизайн интерьера компактной квартиры, можно писать лично мне ... читать полностью
|
![]() |
|
![]() |
![]() |
![]() |
![]() |
![]() |
![]() |
Дизайн двухуровневой квартиры в Эстонии, городе Таллин. Просто сказка🤌
Берём проекты для удаленной работы 😏
Берём проекты для удаленной работы 😏
|
|
![]() |
|
![]() |
![]() |
![]() |
![]() |
![]() |
![]() |
![]() |
![]() |
Один из любимейших дизайн-проектов в г. Белград!
Камин в кухне - главная фишка квартиры для семьи из Москвы! Много света, светлые стены и зеркала, всё это визуально увеличивает пространство!
LED-подсветка добавляет уюта и разных сюжетов освещения! Таким образом, в спальне можно включить только парящий потолок и подсветку за изголовьем, и романтическая атмосфера Вам обеспечена :)
Ждём Ваши заявки на квартиру мечты!
Камин в кухне - главная фишка квартиры для семьи из Москвы! Много света, светлые стены и зеркала, всё это визуально увеличивает пространство!
LED-подсветка добавляет уюта и разных сюжетов освещения! Таким образом, в спальне можно включить только парящий потолок и подсветку за изголовьем, и романтическая атмосфера Вам обеспечена :)
Ждём Ваши заявки на квартиру мечты!
|
|
![]() |
|
![]() |
![]() |
![]() |
![]() |
![]() |
![]() |
![]() |
![]() |
Дизайн офиса 450 кв.м для крупного агенства недвижимости "Этажи".
Работа над большим количеством помещений разного назначения: от офисов до кухни и санузлов. Учёт существующей системы вентилирования.
Работа над большим количеством помещений разного назначения: от офисов до кухни и санузлов. Учёт существующей системы вентилирования.
|
|
![]() |
|
![]() |
![]() |
|||||
|
||||||
|
||||||
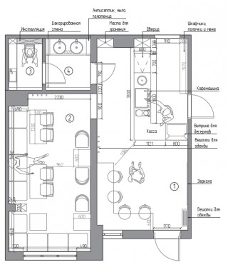
Удалённая работа над объектами коммерции для нас также не является проблемой.
Пример такой работы: автосервис "ЗАПЧАСТЕР" в городе Нижневартовск. Строгость и стиль выражен минимальным вмешательством цветов в интерьер.
В рамках данного проекта были спроектированы разные по назначению помещения в автосервисе: приёмная, зал ожидания, класс, диспетчерская и санузел!
Больше интересного (больше фото + планировка) на нашем сайте. Также всегда рада проконсультировать Вас по про... читать полностью
Пример такой работы: автосервис "ЗАПЧАСТЕР" в городе Нижневартовск. Строгость и стиль выражен минимальным вмешательством цветов в интерьер.
В рамках данного проекта были спроектированы разные по назначению помещения в автосервисе: приёмная, зал ожидания, класс, диспетчерская и санузел!
Больше интересного (больше фото + планировка) на нашем сайте. Также всегда рада проконсультировать Вас по про... читать полностью
|
![]() |
|
![]() |
![]() |
|||||
|
||||||
|
||||||
Редизайн вторичной квартиры 81 м2 в контрастных цветах.
В данном проекте основывались на дизайне кухни-гостиной, сделанной ранее.
В данном проекте основывались на дизайне кухни-гостиной, сделанной ранее.
|
|
![]() |
|
![]() |
![]() |
![]() |
![]() |
![]() |
![]() |
![]() |
![]() |
![]() |
Дизайн таунхауса. Лёгкий и комфортный интерьер.
Больше о проекте можно посмотреть на сайте:
https://krug-design.ru/p8#!/tab/541492184-1
Больше о проекте можно посмотреть на сайте:
https://krug-design.ru/p8#!/tab/541492184-1
|
|
![]() |
|
![]() |
![]() |
|||||
|
||||||
|
||||||
Дизайн кофейни "Индустрия" с разными сценариями нахождения посетителей.
Входная группа белого цвета для визуального увеличения пространства этой части кофейни. Неоновые элементы придают динамичности и по расположению стола и барным стульям можно понять, что здесь люди могут подождать свой кофе или же быстро перекусить и бежать дальше по делам.
Второй зал создан на контрасте и располагает к тому, чтобы заказать себе кофе, обед и десерт. В неторопливом темпе перекусить,... читать полностью
Входная группа белого цвета для визуального увеличения пространства этой части кофейни. Неоновые элементы придают динамичности и по расположению стола и барным стульям можно понять, что здесь люди могут подождать свой кофе или же быстро перекусить и бежать дальше по делам.
Второй зал создан на контрасте и располагает к тому, чтобы заказать себе кофе, обед и десерт. В неторопливом темпе перекусить,... читать полностью
|



























































































































